Дровяная печь HARVIA 20 Duo WK200SLUX
0 (0.00%)
Узнать цену по ПРОМОКОДУ
руб.
Кроме того, каменка Harvia Duo очень долговечна. Внешний корпус каменки сделан из высококачественной нержавеющей стали. Каменка имеет большую стильную дверцу со стеклом с окантовкой из нержавеющей стали. Каменку можно оснастить баком для воды, который устанавливается на дымовую трубу.
pекомендуемый объем сауны от 8 до 20 м3
максимальное количество камней - 40 кг
| Модель | WK200SLUX |
| Мощность, кВт | 24,1 |
| Минимальный объем парильни, м3 | 8 |
| Максимальны объем парильни, м3 | 20 |
| Максимальный вес камней, кг | 40 |
| Размеры: ширина, мм | 430 |
| Размеры: высота, мм | 760 |
| Размеры: глубина, мм | 510 + 280 |
| Масса, кг | 80 |
|
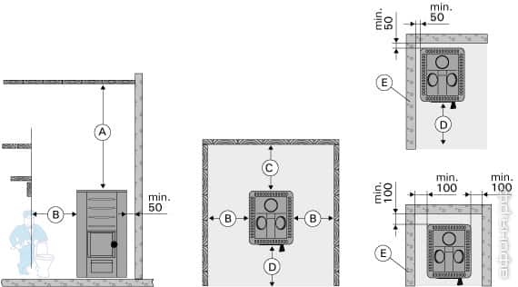
Безопасное расстояние сбоку и сзади, кирпичные стены E мм |
50 (* |
| Безопасное расстояние сбоку (B) и сзади (C), стены и полки изготовлены из воспламеняющихся материалов мм | 300 |
| Безопасное расстояние спереди (D), мм | 300 |
| Безопасное расстояние от верха до потолка A мин., мм | 1300 |
| Толщина крышки над огнем, мм | 10 |
| Диаметр дымохода, мм | 115 |
| (* Оставьте между стенами и каменкой 50 мм так, чтобы воздух мог циркулировать за каменкой и сбоку. Если каменка установлена в нише стены, оставьте между ней и стенами расстояние 100 мм для обеспечения циркуляции воздуха. |


Тип товара и бренды: | |||
| Вид: | Печь | ПодВид: | Дровяная печь |
| Бренд: | Harvia | Название: | Harvia |
| Назначение: | Для бани 8-20 куб. м. | ||
Производитель и Скидки: | |||
| Страна: | Финляндия | Произведено: | Финляндия |
Размеры: | |||
| Ширина, мм: | 430 | Высота, мм: | 760 |
| Глубина, мм: | 790 | Вес, кг: | 80 |
Материал и конcтрукция: | |||
| Материал: | Нержавеющая сталь | ||
Мощность и прочность: | |||
| Мощность, Вт: | 24100 | ||
Важно! Правила размещения вопроса
Еще нет вопросов по этому товару
Поделиться:
Каталог товаров ❯
Контакты магазинов ❯
Отдел плитки
Отдел инженерии
Отдел плитки
Отдел инженерной сантехники
Отдел инженерной сантехники
Отдел плитки
ТРК "Дунай"
Железноводская ул., 3 / Уральская ул., 10/2
ТЦ "Василеостровский"
1 этаж, секция 87а
1 этаж, секция 105
НОВАЯ СЕКЦИЯ 87а
1 этаж, прикассовая зона гипермаркета О’КЕЙ
НОВЫЙ МАГАЗИН!
СКИДКА до 7%
от текущей цены на сайте, только при личном посещении магазина.
СКИДКА до 7%
от текущей цены на сайте, только при личном посещении магазина.
СКИДКА до 7%
от текущей цены на сайте, только при личном посещении магазина.
Воскресенье — выходной
Компенсируем затраты на паркинг
и поможем с его оформлением
*При покупке от 3000р.
СКИДКА до 7%
от текущей цены на сайте, только при личном посещении магазина.
Отдел интерьерных материалов
СКИДКА до 7%
от текущей цены на сайте, только при личном посещении магазина.
Отдел плитки
ТРК "Вояж", вход 4
Отдел плитки
Отдел инженерной сантехники
СКИДКА до 7%
от текущей цены на сайте, только при личном посещении магазина.
Ленинградская область, Всеволожский муниципальный район, Бугровское сельское поселение, Бугровская улица, ул. 23 км КАД (внутреннее кольцо), стр. 3, Складской Комплекс RAUM Бугры, склад А3, ворота 26, 27, 28, 29, 30
Отдел логистики
самовывоз с 9:00 до 2:00
Как получить максимально возможную скидку на товар? Приобрести VIP-карту!
Карта окупается практически с первой покупки!
×
При наличии VIP-карты Вы экономите 2 599руб.
Например, при покупке ванны цена по VIP-карте составит 23 391 руб. вместо 25 990 руб. Скидка по VIP-карте составляет 2 599 руб. При стоимости VIP-карты в 770 руб. 199 руб. Ваша скидка получается 1 899 руб. с первой покупки!
Все остальные заказы Вы уже сможете делать с максимально возможной скидкой, Вам просто нужно будет указывать номер Вашей карты в комментариях к заказу, либо быть авторизованным на сайте.
На сайте на большинство товаров уже указаны цены по VIP-карте, а если её нет, Вы можете обратиться к нашим менеджерам. Они подскажут, какие цены Вы сможете получить благодаря VIP-карте.
Вам больше не нужно обходить все окрестные магазины и просматривать десяток сайтов в интернете, потому что мы сделали это за Вас. Наши маркетологи регулярно мониторят всех возможных конкурентов, имея много магазинов и большой оборот, наши закупщики получают минимальные цены на товар от производителей. С каждой последующей покупки Вы получите ощутимую выгоду. Карта оформляется только на физическое лицо.
Помогите нам стать лучше Отправьте отзыв, жалобу
или предложение в
Отдел контроля качества.

Афоня — ваш